| 
                 | 
              
| 価格 | 3,880万円 | 所在地 | 北杜市大泉町西井出 | 
| 標高 | 1,060m | 最寄駅 | JR小海線・甲斐大泉駅より約1.3km(車約2分) | 
| 土地面積 | 1708.9u/517坪 | インター | 中央自動車道・長坂ICより約6.4km(車で約8分) | 
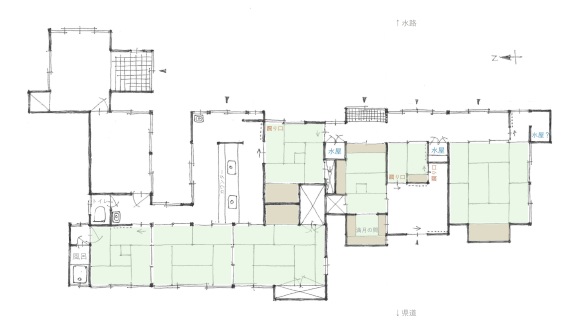
| 建物面積 | 159.17u/48.14坪 | 建築年月 | 昭和54年(1979)築 昭和57年(1982)増築 昭和60年(1985)増築  | 
              
| 取引形態 | 仲介 | ||
| 引渡時期 | 相談 | 構造 | 木造亜鉛メッキ鋼板葺平家建 | 
| 現状 | 空き家 | 間取 | 和室約6部屋、洋室4部屋、DK | 
| 権利 | 所有権 | 道路 | 西側県道に接する | 
| 駐車 | 約5〜6台 | 暖房 | 置き型ストーブ | 
| 建ぺい率 | 40% | 電気 | 東京電力他 | 
| 容積率 | 100% | 水道 | 公営水道 | 
| 都市計画 | 区域外 | 排水 | トイレ汲取り式、その他排水は浸透式 | 
| 区域区分 | 森林共生区域 | 給湯 | 買主様にて新設くださいませ | 
| 地形 | 平坦+一部傾斜 | ごみ捨て | 役場へ持込みorごみ処理業者へ持込み | 
| 地目 | 宅地 | 土砂災害 | 非該当 | 
| 陽当り | 良好 | 眺望 | 山の眺望なし | 
| 学区 | 泉小、泉中 | 周辺環境 | 店舗、アパート、ガソリンスタンド、水路等 | 
| その他 | ・排水は上記の通りですが、下水分担金を北杜市へ納めて接続工事を行なうことにより下水の利用が可能です。 ・建物を直して使う場合は、屋根葺き替え、外壁工事、床・壁張替え、給排水管工事、建具交換、畳交換、水道設備関係入れ替え、など、すべての工事が必要です。  | 
              ||
| アクセス | ひまわり市場(約4.5m)車で約6分 小淵沢駅(約11km)車で約15分  | 
              ||
| 付随費用 →費用についての詳細はこちら | 配置図(クリックすると拡大します) | |
| 仲介手数料(税込) | 1,346,400円 | 
                 | 
              
| 収入印紙代(契約書貼付用) | 10,000円 | |
|  所有権移転登記費用 融資利用の方は別途抵当権設定費用等あり  | 
                見積り要 | |
| 管理費 | なし | |
|  固定資産税 引渡し日に応じて日割り計算  | 
                (確認中)円/年 | |
| 間取図(クリックすると拡大します) | 
| 
                 | 
              
        〒409-1501
        山梨県北杜市大泉町西井出3386-3
        TEL.0551-38-1562
        FAX.0551-38-1563