本文へスキップ

甲陽不動産は山梨県北杜市で八ヶ岳南麓を中心に土地・建物の仲介をしています

お電話でのお問い合わせはTEL.0551-38-1562

メールでのお問合せはこちら

物件No:B22340


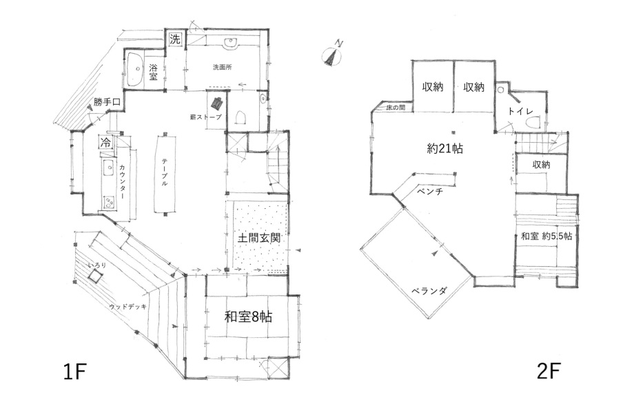
古材を贅沢に使用した味わいのある日本家屋の別荘です。
建築業を営んでいたオーナーがこだわり楽しみながら建てた別荘で、柱や梁には重厚な古材を使用。
玄関扉には蔵で使われていた扉を再利用し、扉を開けると土間が広がるなど 古民家好きの方・これからのメンテナンスを楽しんでいただける方に是非見ていただきたい建物。
室内は大人数でもゆったりと過ごせる広さがあり、屋根と囲炉裏のあるウッドデッキや、オーダーメイドの薪ストーブなど、どこか懐かしく温もりを感じる空間が広がります。
敷地西側には小川が流れ、周囲の住宅が見えにくい配置のためプライベート感も十分。
庭では山野草を楽しめ、秋には紅葉など、四季折々の自然に癒される環境です。


・・・事前にご了承ください・・・
▶古材や古い建具を再利用しているため、戸が閉まりきらない箇所があります。
▶2Fの収納の建具が一部ありません。
▶配置図の通り、道路の向かい側にある三角の土地(38㎡/11坪)も含みます。
▶敷地の約半分は西向き傾斜地です。
▶地下は湿気がこもりやすいため、換気を行わないとカビが発生する可能性があります。敷地が小川に近い環境のため、あらかじめご理解ください。
▶冬季は四輪駆動&スタッドレスタイヤのお車をお勧めします。
▶近隣の皆さんと協力して、道路の砂利敷きや転圧、側溝の清掃など道路の維持管理を行っています。定住・別荘利用にかかわらず、このような共同作業にご協力いただける方を希望しています。
▶売主様のご意向により、民泊の営業は申し訳ございませんがお断りさせていただきます。
※詳細画像はページ下にございます
 価格 3,200万円  所在地 北杜市大泉町谷戸
 標高 1,130m 最寄駅 JR小海線・甲斐大泉駅より約3.6km(車で約7分)
土地面積 1372㎡/415坪 インター 中央自動車道・長坂ICより約8.5km(車で約13分)
建物面積 1F:約99㎡/約30坪
2F:約63㎡/約19坪
合計:約162㎡/約49坪
建築年月 平成13年(2001)頃
構造 木造2階建(引渡しまでに建物登記を行います)
駐車 約3台(増台可) 間取 2SLDK
取引形態 仲介 道路 東側・公道に接する(未舗装道路)
引渡時期 相談 周辺環境 別荘、移住、小川、林など
現状 別荘利用中 暖房 薪ストーブ、置き型ストーブ
建ぺい率 40% 電気 東京電力他
容積率 100% 水道 公営水道
都市計画 区域外 排水 浄化槽
区域区分 森林共生区域 給湯 灯油式
権利 所有権 キッチン IHクッキングヒーター
地目 山林 土砂災害 イエローゾーンに該当
陽当り 良好 ごみ捨て 現在は別荘のため持ち帰り
地形 敷地半分西向き傾斜 学区 泉小学校・泉中学校
設備 ペアガラス、ユニットバス、システムキッチン、IHクッキングヒーター、トイレ2か所(ウォシュレット)、一部の家具家電が付きます(要相談)
アクセス きららシティまで約8.5km(車で約13分)
ひまわり市場まで約5km(車で約8分)
小淵沢駅まで約9.3km(車で約17分)

 付随費用   →費用についての詳細はこちら  配置図(クリックすると拡大します)
 仲介手数料(税込) 1,122,000円
 収入印紙代(契約書貼付用) 10,000円
 所有権移転登記費用
融資利用の方は別途抵当権設定費用等あり
見積り要
 管理費
引渡し日に応じて日割り計算
なし
 固定資産税
引渡し日に応じて日割り計算
(確認中)/年

間取図(クリックすると拡大します)

※画像をクリックすると拡大します
2F2F2F2F2F 納戸2F トイレ2F ベランダ2F ベランダからの景色敷地西側の小川敷地西側の小川敷地西側の小川1F トイレ
図面と現況が異なる場合は現況を優先させて頂きます

shop info店舗情報

甲陽不動産


〒409-1501
山梨県北杜市大泉町西井出3386-3
TEL.0551-38-1562
FAX.0551-38-1563